間取り動画31

11坪でも二人暮らし。セカンドハウスに最適間取り #平屋

alt=
  • 間取り動画31
  • [画像02]
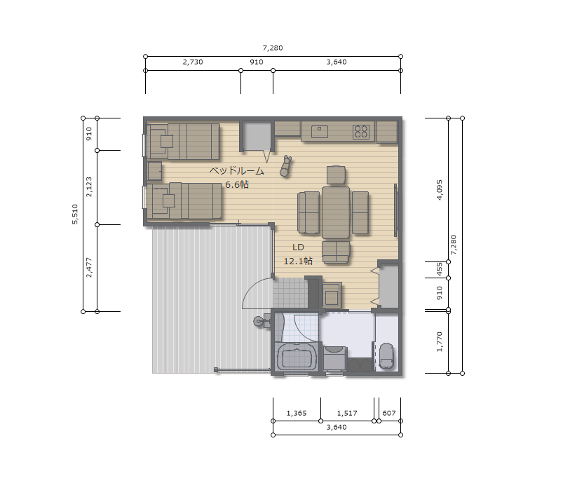
平屋11坪。今回は「セカンドハウス」建物の形はL型になっており、カバードポーチが付いているため外をテラスとして使用することも可能。内装はセカンドハウス・週末リゾートというイメージで設定。収納スペースがきちんととれているため、ふたり暮らしをすることも出来る間取りとなっている。

11坪でも二人暮らし。セカンドハウスに最適間取り #平屋
間取り動画31

11坪でも二人暮らし。セカンドハウスに最適間取り #平屋

間取り

面積 36.36 ㎡(10.99坪)
間取り図1

お問い合わせ

11坪でも二人暮らし。セカンドハウスに最適間取り #平屋
プラン番号 間取り動画31

こちらのプランについての詳細や、気になる点などについてお気軽にお問い合わせください。