間取り動画75

狭小敷地に建てる!平屋11坪インナーガレージ×ロフト付き

alt=
alt=
alt=
alt=
alt=
  • 間取り動画75
  • [画像02]
  • [画像03]
  • [画像04]
  • [画像05]
  • [画像06]
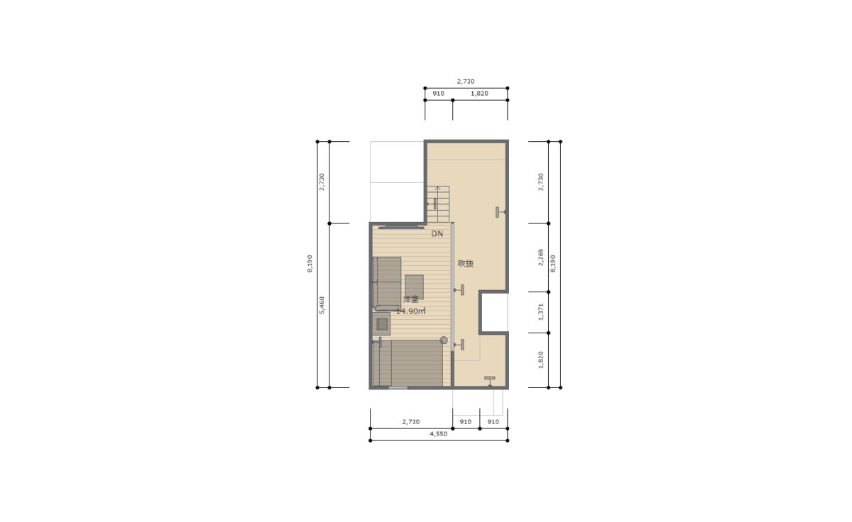
平屋11坪インナーガレージ付き+ロフト付き。狭小敷地にインナーガレージ付き・1人暮らしの建物を建築する場合にどのような間取りになるのかがテーマとなっています。今回のインナーガレージは車を整備するのではなく、車をしっかりと格納できるガレージというイメージで作られているプランとなります。

狭小敷地に建てる!平屋11坪インナーガレージ×ロフト付き
間取り動画75

狭小敷地に建てる!平屋11坪インナーガレージ×ロフト付き

間取り

面積 36.36 ㎡(10.99坪)
間取り図1
間取り図2

お問い合わせ

狭小敷地に建てる!平屋11坪インナーガレージ×ロフト付き
プラン番号 間取り動画75

こちらのプランについての詳細や、気になる点などについてお気軽にお問い合わせください。