間取り動画68

平屋で猫と暮らす”ひとり暮らし” コンパクトハウス #ペットと暮らす

alt=
alt=
alt=
alt=
  • 間取り動画68
  • [画像02]
  • [画像03]
  • [画像04]
  • [画像05]
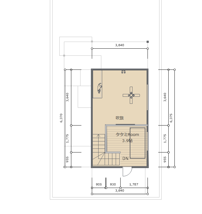
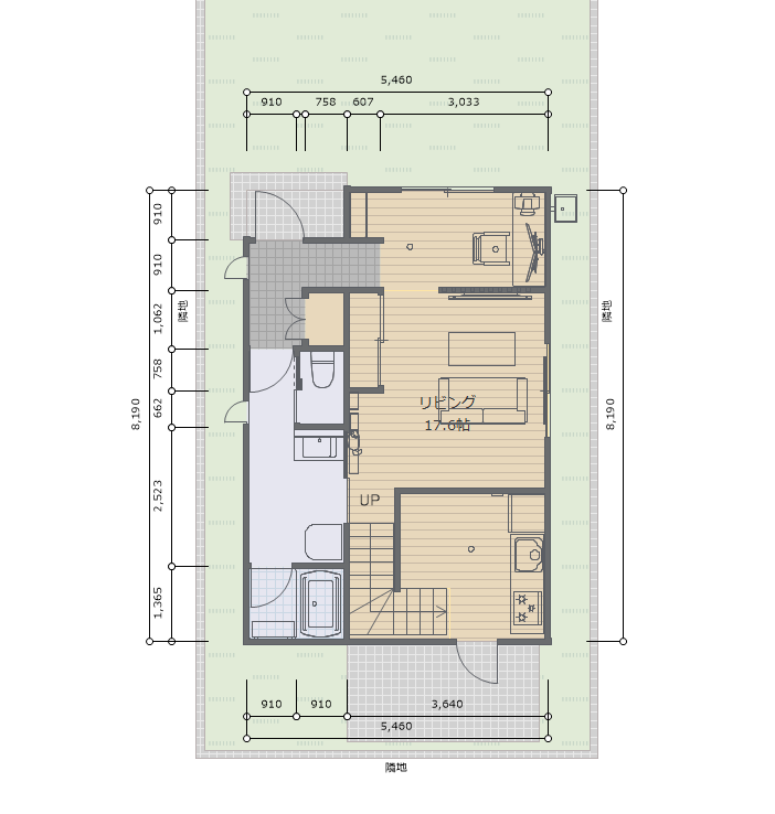
狭小敷地に建つ平屋13坪ロフト付き。敷地間口が非常に狭く、都心部で建築をした場合のイメージで作れらています。テーマは「一人暮らし+ネコと一緒に暮らす」こちらの動画では、小さな平屋ですが、特徴ある間取り、そしてコンパクトハウスの特徴でもある吹き抜けの活用法、そしてロフトの上手な活用法をご覧いただけます。

平屋で猫と暮らす”ひとり暮らし” コンパクトハウス #ペットと暮らす
間取り動画68

平屋で猫と暮らす”ひとり暮らし” コンパクトハウス #ペットと暮らす

間取り

面積 42.97 ㎡(12.99坪)
間取り図1
間取り図2

お問い合わせ

平屋で猫と暮らす”ひとり暮らし” コンパクトハウス #ペットと暮らす
プラン番号 間取り動画68

こちらのプランについての詳細や、気になる点などについてお気軽にお問い合わせください。