間取り動画69

進化した13坪プラン「理想を越える」ひとり暮らし

alt=
alt=
alt=
alt=
  • 間取り動画69
  • [画像02]
  • [画像03]
  • [画像04]
  • [画像05]
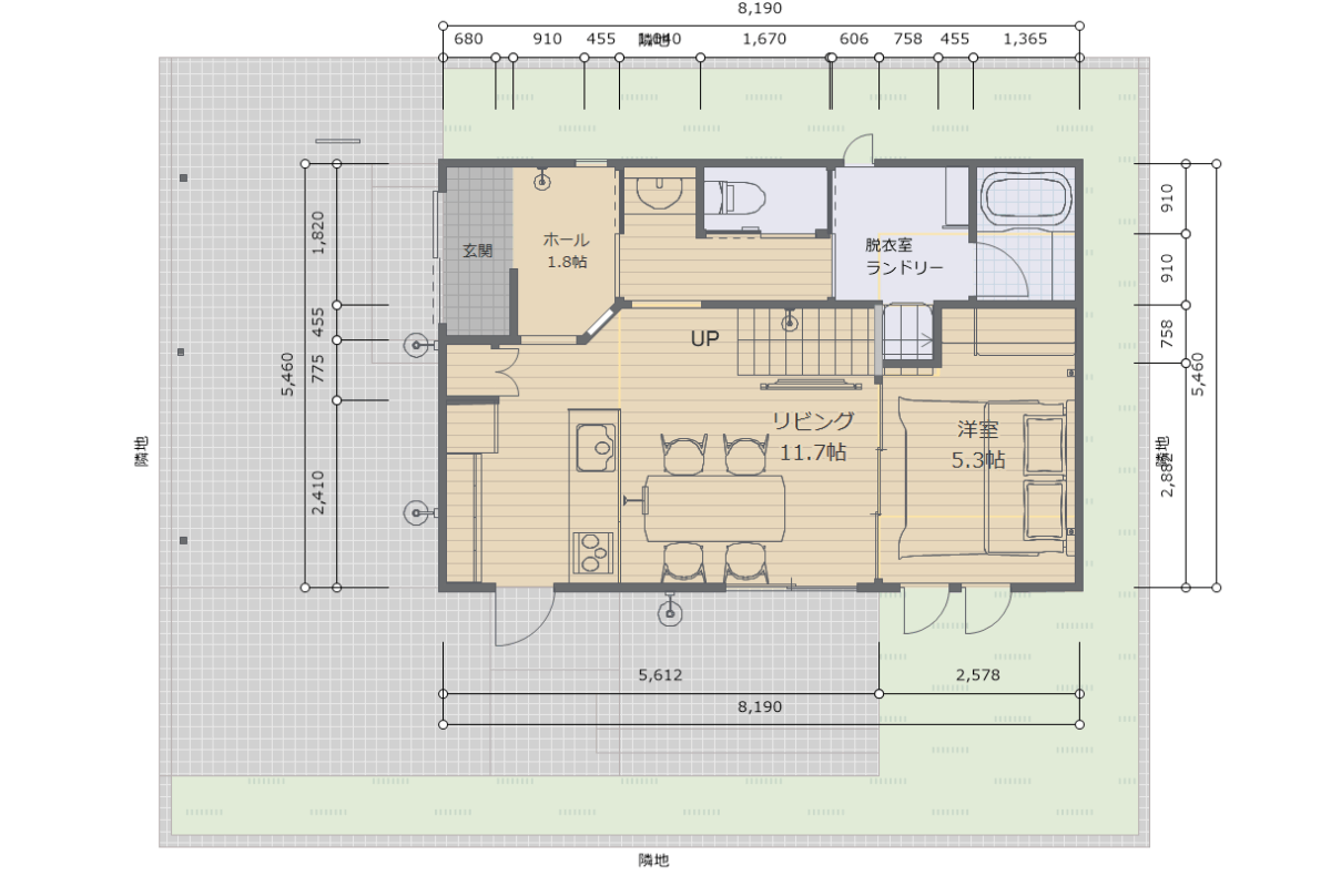
平屋13坪+ロフト付き。テーマは「女性ひとり暮らし」今回、駐車スペースはカーポートではなく屋根をつけ玄関へ入る際も雨に濡れずに入る事が可能。玄関ホールは1.8帖と広い為宅配や来客が来ても玄関ホールだけで完結が出来る。ロフトは約6帖あり、全面畳敷き(樹脂畳)になっているためゴロゴロと出来るスペースとなっている。

進化した13坪プラン「理想を越える」ひとり暮らし
間取り動画69

進化した13坪プラン「理想を越える」ひとり暮らし

間取り

面積 42.97 ㎡(12.99坪)
間取り図1

お問い合わせ

進化した13坪プラン「理想を越える」ひとり暮らし
プラン番号 間取り動画69

こちらのプランについての詳細や、気になる点などについてお気軽にお問い合わせください。