間取り動画72

パウダールーム付きのコンパクトハウス12坪 #ふたり暮らし #ひとり暮らし #パウダールーム

alt=
alt=
alt=
  • 間取り動画72
  • [画像02]
  • [画像03]
  • [画像04]
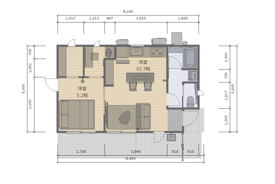
二人暮らし、純粋な平屋12坪。今回はパウダールームとサンルームを設定。パウダールームは1.3帖あり、壁埋込の収納を設置。サンルームは約5帖と大きく、洗濯物干場としても使用可能。防犯性も考え、サンルームや人が入れそうな窓にはシャッターを設置。1LDK

パウダールーム付きのコンパクトハウス12坪 #ふたり暮らし #ひとり暮らし #パウダールーム
間取り動画72

パウダールーム付きのコンパクトハウス12坪 #ふたり暮らし #ひとり暮らし #パウダールーム

間取り

面積 39.66 ㎡(11.99坪)
間取り図1

お問い合わせ

パウダールーム付きのコンパクトハウス12坪 #ふたり暮らし #ひとり暮らし #パウダールーム
プラン番号 間取り動画72

こちらのプランについての詳細や、気になる点などについてお気軽にお問い合わせください。