間取り動画74

10坪+ロフトは贅沢空間!ロフト7帖で充分すぎる、ひとり暮らしプラン!ふたり暮らしでも良いね!

alt=
alt=
alt=
alt=
alt=
alt=
  • 間取り動画74
  • [画像02]
  • [画像03]
  • [画像04]
  • [画像05]
  • [画像06]
  • [画像07]
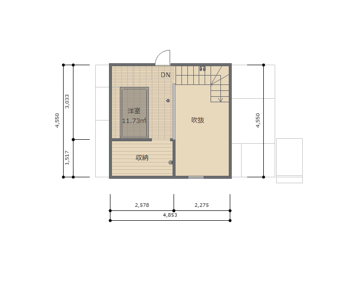
1人暮らし、10坪平屋ロフト付き。シンプルでゆとりある空間と、癒しの解放感で年齢や性別を問わずに住めるコンパクトハウス。広々としたリビングに、対面キッチン。ランドリースペースは1坪と充実した収納スペース。今回はロフトに寝室と収納スペースを設定。ワンルーム+ロフト7帖

10坪+ロフトは贅沢空間!ロフト7帖で充分すぎる、ひとり暮らしプラン!ふたり暮らしでも良いね!
間取り動画74

10坪+ロフトは贅沢空間!ロフト7帖で充分すぎる、ひとり暮らしプラン!ふたり暮らしでも良いね!

間取り

面積 33.05 ㎡(9.99坪)
間取り図1
間取り図2

お問い合わせ

10坪+ロフトは贅沢空間!ロフト7帖で充分すぎる、ひとり暮らしプラン!ふたり暮らしでも良いね!
プラン番号 間取り動画74

こちらのプランについての詳細や、気になる点などについてお気軽にお問い合わせください。