間取り動画43

15坪で実現した「充実間取り!」最高の吹き抜け空間も #平屋

alt=
alt=
alt=
  • 間取り動画43
  • [画像02]
  • [画像03]
  • [画像04]
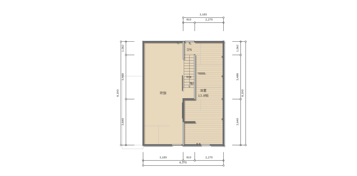
平屋スタイル15坪+ロフト付き。今回のテーマは「ふたり暮らしorお子様を加えた3人暮らし」外観はナチュラススタイルとなっているが、どのようなスタイルにも変更可能。ロフトスペースは約14帖と広く、1か所壁を作る事で部屋を2つという形で分ける事も出来る。ロフトからキッチンを見下ろすと広々とした解放感。

15坪で実現した「充実間取り!」最高の吹き抜け空間も #平屋
間取り動画43

15坪で実現した「充実間取り!」最高の吹き抜け空間も #平屋

間取り

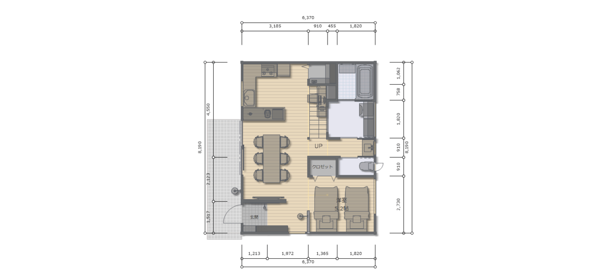
面積 49.58 ㎡(14.99坪)
間取り図1
間取り図2

お問い合わせ

15坪で実現した「充実間取り!」最高の吹き抜け空間も #平屋
プラン番号 間取り動画43

こちらのプランについての詳細や、気になる点などについてお気軽にお問い合わせください。