間取り動画62

女性1人くらしの平屋14坪!周りを気にせず快適ライフ♪#平屋 #間取り

alt=
alt=
alt=
  • 間取り動画62
  • [画像02]
  • [画像03]
  • [画像04]
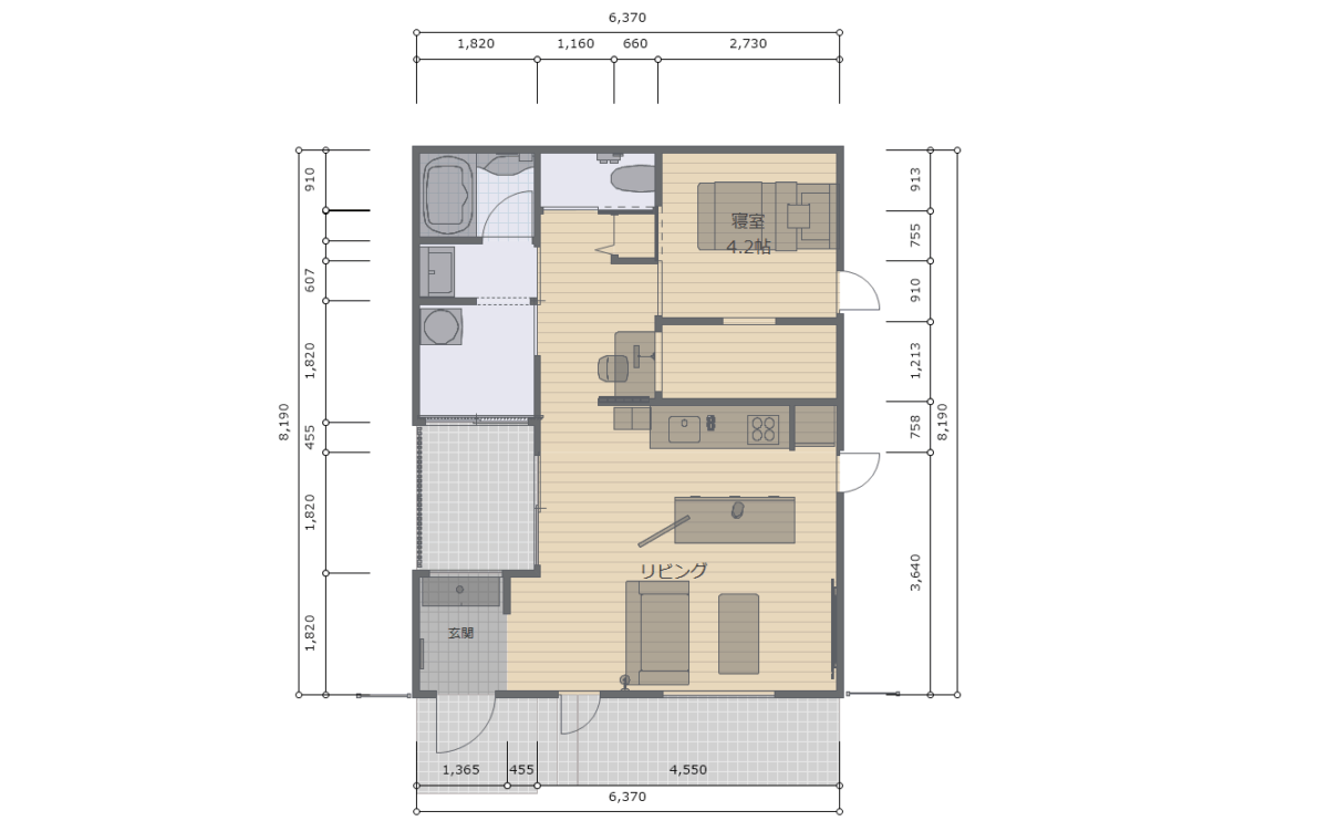
純粋な平屋14坪。今回のテーマは「女性ひとり暮らし」しっかりとプライバシーを確保しながらも、ゆとりのある空間を実現。敷地面積は38坪と住宅地としては狭く、分譲地のイメージ。部外者が入ってこれないよう建物の横には柵を設置、外に設置されているランドリースペースもしっかりと目隠しをしている。

女性1人くらしの平屋14坪!周りを気にせず快適ライフ♪#平屋 #間取り
間取り動画62

女性1人くらしの平屋14坪!周りを気にせず快適ライフ♪#平屋 #間取り

間取り

面積 46.27 ㎡(13.99坪)
間取り図1

お問い合わせ

女性1人くらしの平屋14坪!周りを気にせず快適ライフ♪#平屋 #間取り
プラン番号 間取り動画62

こちらのプランについての詳細や、気になる点などについてお気軽にお問い合わせください。