間取り動画78

和モダンな15坪は「車1台+単車2台」インナーガレージ付で、しっかりロフトもある理想のガレージハウス!

alt=
alt=
alt=
alt=
  • 間取り動画78
  • [画像02]
  • [画像03]
  • [画像04]
  • [画像05]
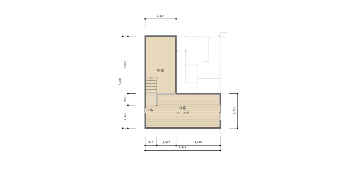
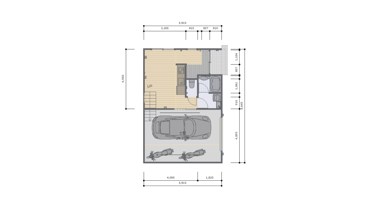
平屋スタイル15坪。インナーガレージ付きの和風スタイルコンパクトハウス。今回は2面道路に面する角地という敷地条件の設定となっています。屋根の形状は切妻屋根ですが、アシンメトリーとなっているため今回ロフトは立って歩ける高さの「2階建て申請のコンパクトハウス」となっています。和風スタイルとなっているため、重厚感のある外観となっています。

和モダンな15坪は「車1台+単車2台」インナーガレージ付で、しっかりロフトもある理想のガレージハウス!
間取り動画78

和モダンな15坪は「車1台+単車2台」インナーガレージ付で、しっかりロフトもある理想のガレージハウス!

間取り

面積 49.58 ㎡(14.99坪)
間取り図1
間取り図2

お問い合わせ

和モダンな15坪は「車1台+単車2台」インナーガレージ付で、しっかりロフトもある理想のガレージハウス!
プラン番号 間取り動画78

こちらのプランについての詳細や、気になる点などについてお気軽にお問い合わせください。