間取り動画59

10坪平屋でロフト付き!?しかも広く感じる間取りとは?

alt=
alt=
alt=
  • 間取り動画59
  • [画像02]
  • [画像03]
  • [画像04]
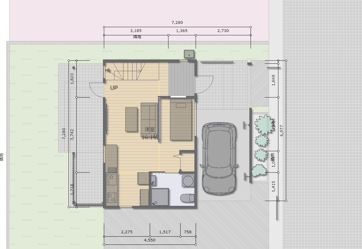
平屋10坪ロフト付き。テーマは「ひとり暮らし」今回、ガレージとロフトを設置。ガレージは車がしっかりと切り返しが出来るような形で設置。ロフトの大きさは6帖あり、寝室・フリースペース・物置と様々な用途で使える。庭側にはランドリースペースがあり、外からはみえないように目隠し。カバードポーチもついているので、雨の日の洗濯も安心。

10坪平屋でロフト付き!?しかも広く感じる間取りとは?
間取り動画59

10坪平屋でロフト付き!?しかも広く感じる間取りとは?

間取り

面積 33.05 ㎡(9.99坪)
間取り図1
間取り図2

お問い合わせ

10坪平屋でロフト付き!?しかも広く感じる間取りとは?
プラン番号 間取り動画59

こちらのプランについての詳細や、気になる点などについてお気軽にお問い合わせください。