間取り動画6

20帖のロフト付き!平屋で大きさは19坪 #ふたり暮らし

alt=
alt=
alt=
alt=
alt=
  • 間取り動画6
  • [画像02]
  • [画像03]
  • [画像04]
  • [画像05]
  • [画像06]
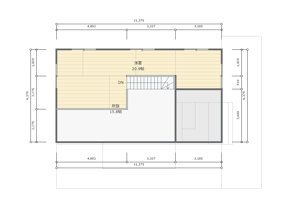
平屋19坪+ロフト付き。コンセプトは「広いLDK、さらにぐるっと家の中を回れる動線の間取り」LDKは23.2帖、動線はLDK→寝室→WIC→脱衣洗面→LDKで回れるような動線になっている。ロフトは20.9帖と広く、ご友人やご家族がいらっしゃった際に使用したり、収納として使用をすることも可能。

20帖のロフト付き!平屋で大きさは19坪 #ふたり暮らし
間取り動画6

20帖のロフト付き!平屋で大きさは19坪 #ふたり暮らし

間取り

面積 62.80 ㎡(18.99坪)
間取り図1
間取り図2

お問い合わせ

20帖のロフト付き!平屋で大きさは19坪 #ふたり暮らし
プラン番号 間取り動画6

こちらのプランについての詳細や、気になる点などについてお気軽にお問い合わせください。