間取り動画70

ふたり暮らしの平屋スタイル、ロフトとインナーガレージが付いた!理想の19坪

alt=
alt=
alt=
alt=
  • 間取り動画70
  • [画像02]
  • [画像03]
  • [画像04]
  • [画像05]
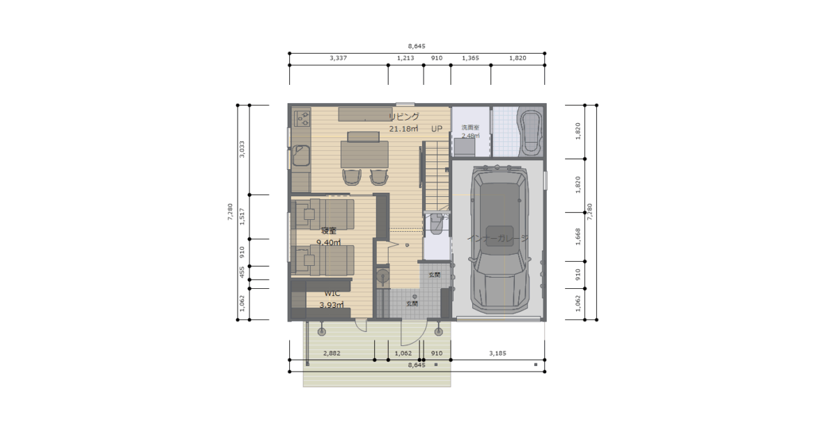
2人暮らし、平屋19坪ロフト+インナーガレージ付き。敷地面積は50坪、建物全体は19坪だが、インナーガレージ付きいた居住スペースは14坪。玄関前にはウッドデッキもあり、どことなくサーファーズハウスをイメージ。ウッドデッキから玄関へアプローチをできるようになっており、玄関ホールをひろめにしているのが特徴。

ふたり暮らしの平屋スタイル、ロフトとインナーガレージが付いた!理想の19坪
間取り動画70

ふたり暮らしの平屋スタイル、ロフトとインナーガレージが付いた!理想の19坪

間取り

面積 62.80 ㎡(18.99坪)
間取り図1
間取り図2

お問い合わせ

ふたり暮らしの平屋スタイル、ロフトとインナーガレージが付いた!理想の19坪
プラン番号 間取り動画70

こちらのプランについての詳細や、気になる点などについてお気軽にお問い合わせください。