間取り動画27

貴重な間取り20坪!モデルハウスのベース間取りを公開!

alt=
alt=
  • 間取り動画27
  • [画像02]
  • [画像03]
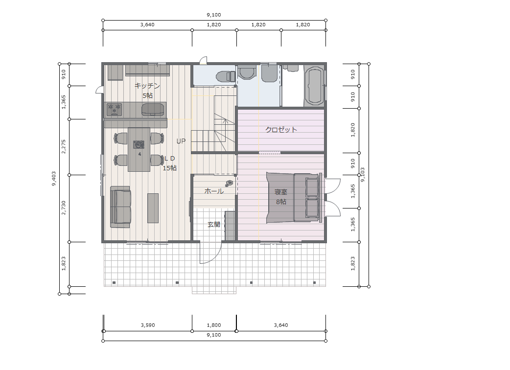
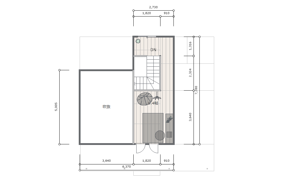
平屋20坪+ロフト付き。コンセントは「海沿いに似合うスタイル、ふたり暮らしもしくはお子様1人を加えた3人暮らし」という間取り。外観の大きな特徴は広々としたカバードポーチ。全面ウッドデッキになっており、寝室からもリビングからもウッドデッキに出られる構造になっている。ロフトは9.4帖

貴重な間取り20坪!モデルハウスのベース間取りを公開!
間取り動画27

貴重な間取り20坪!モデルハウスのベース間取りを公開!

間取り

面積 66.10 ㎡(19.99坪)
間取り図1
間取り図2

お問い合わせ

貴重な間取り20坪!モデルハウスのベース間取りを公開!
プラン番号 間取り動画27

こちらのプランについての詳細や、気になる点などについてお気軽にお問い合わせください。