間取り動画21

ロフト付き!インナーガレージ付きのコンパクトハウス9坪

alt=
  • 間取り動画21
  • [画像02]
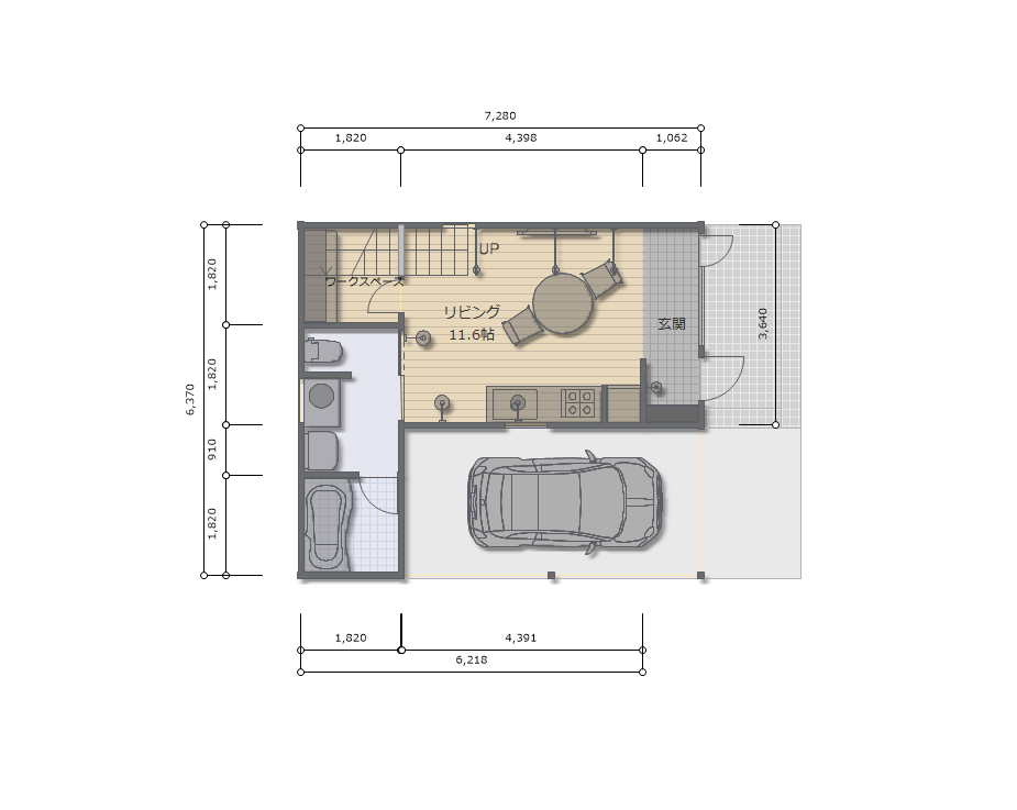
平屋9坪+ロフト・インナーガレージ付き。こちらは「20代後半のミニマリストな男性ひとり暮らし」をイメージ。今回、ガレージには圧迫感が出てしまう為オープンで設定。壁・シャッターを設置することも可能。ロフトは6帖あり、ベッドスペースとして使用をすることが可能。※建築面積13坪

ロフト付き!インナーガレージ付きのコンパクトハウス9坪
間取り動画21

ロフト付き!インナーガレージ付きのコンパクトハウス9坪

間取り

面積 29.75 ㎡(8.99坪)
間取り図1

お問い合わせ

ロフト付き!インナーガレージ付きのコンパクトハウス9坪
プラン番号 間取り動画21

こちらのプランについての詳細や、気になる点などについてお気軽にお問い合わせください。