間取り動画14

9坪でロフト付き!夢の平屋がコンパクトハウスになった

alt=
alt=
  • 間取り動画14
  • [画像02]
  • [画像03]
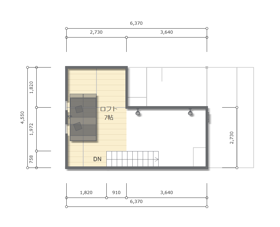
平屋9坪+ロフト付き。こちえらはシングルマザーの方にご活用いただけるような間取り。小さな建物と可愛らしい外観が特徴。7帖のロフトの下は、天井の高さを2.1mに抑える事でロフトの床を下げ天井の高さを1.4mを確保している。リビングに設置をする家具は自由にレイアウトをしていただけるような間取りになっている。

9坪でロフト付き!夢の平屋がコンパクトハウスになった
間取り動画14

9坪でロフト付き!夢の平屋がコンパクトハウスになった

間取り

面積 29.75 ㎡(8.99坪)
間取り図1
間取り図2

お問い合わせ

9坪でロフト付き!夢の平屋がコンパクトハウスになった
プラン番号 間取り動画14

こちらのプランについての詳細や、気になる点などについてお気軽にお問い合わせください。