間取り動画20

平屋スタイル16坪でガレージハウス!?しかもロフトも付いてる!?

alt=
  • 間取り動画20
  • [画像02]
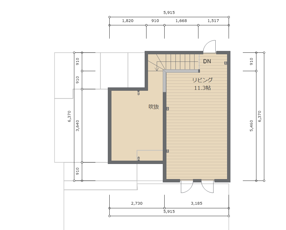
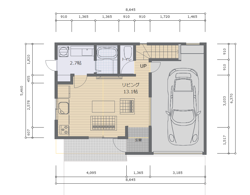
平屋スタイル16.6坪+ロフト・インナーガレージ付き。外壁は少しシックな感じのモノトーンなイメージ。洗面化粧室はランドリースペースとして使えるよう広めに設定、ホスクリーンを取り付けることによって洗濯物を干すことも可能。ロフトは11.2帖、今回は仕切りを付けてベッドを2台設置。

平屋スタイル16坪でガレージハウス!?しかもロフトも付いてる!?
間取り動画20

平屋スタイル16坪でガレージハウス!?しかもロフトも付いてる!?

間取り

面積 52.88 ㎡(15.99坪)
間取り図1
間取り図2

お問い合わせ

平屋スタイル16坪でガレージハウス!?しかもロフトも付いてる!?
プラン番号 間取り動画20

こちらのプランについての詳細や、気になる点などについてお気軽にお問い合わせください。