間取り動画33

ふたり暮らし14坪でしっかりのインナーガレージ+ロフト付き平屋 #平屋

alt=
  • 間取り動画33
  • [画像02]
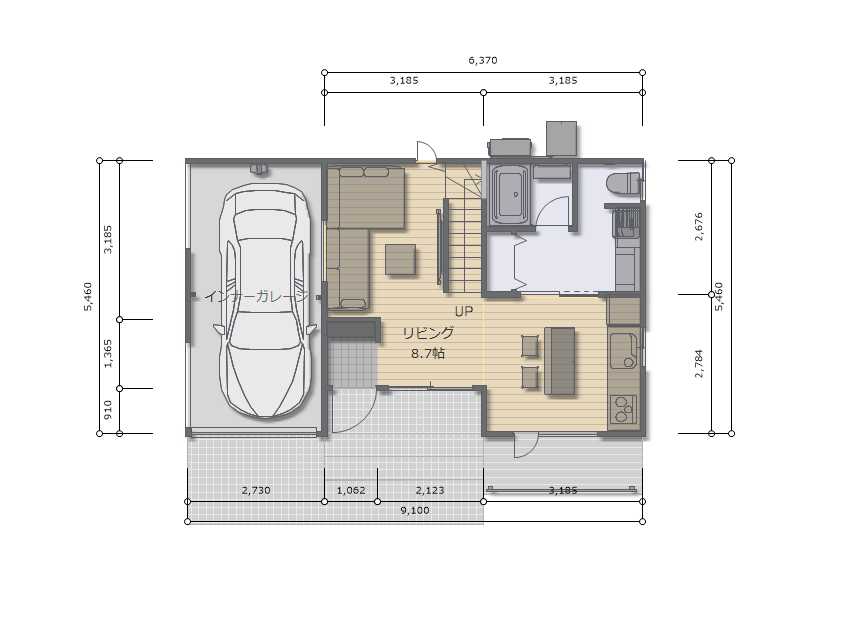
平屋14坪+ロフト・インナーガレージ付き。今回は二人暮らし向けの間取り。外にはテラスを設定しており、ここはウッドデッキへ変更をすることもできる。中はランドリースペースを広めにとっているため、天井からホスクリーンを3列ほどかける事可能。ロフトは約5.5帖、収納やカウンターを設置することもできる。

ふたり暮らし14坪でしっかりのインナーガレージ+ロフト付き平屋 #平屋
間取り動画33

ふたり暮らし14坪でしっかりのインナーガレージ+ロフト付き平屋 #平屋

間取り

面積 46.27 ㎡(13.99坪)
間取り図1

お問い合わせ

ふたり暮らし14坪でしっかりのインナーガレージ+ロフト付き平屋 #平屋
プラン番号 間取り動画33

こちらのプランについての詳細や、気になる点などについてお気軽にお問い合わせください。