間取り動画37

リアルサイズな3人家族!平屋14坪でロフト×ランドリースペース付!#平屋

alt=
  • 間取り動画37
  • [画像02]
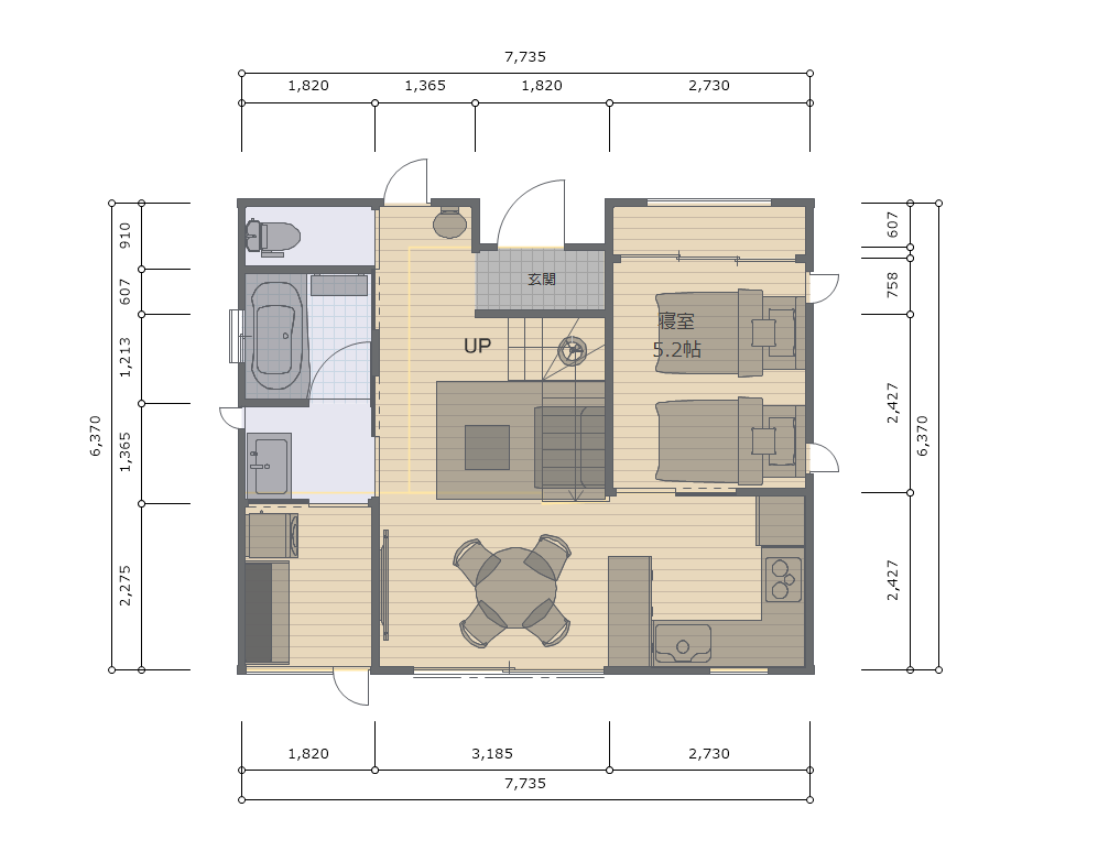
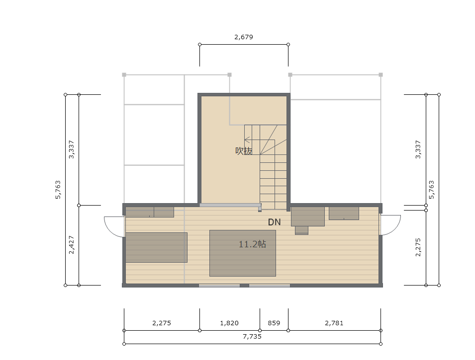
平屋14.5坪+ロフト付き。こちらは「ご夫婦お2人と小さなお子様1人のご家族」がお住まいという設定。外にはウッドデッキがあり、天気が良ければウッドデッキに洗濯物を干すことも可能。ロフトは11.2帖あり、今回は子供部屋+共有スペース(リモートスペース)として設定。ランドリースペース2.5帖。

リアルサイズな3人家族!平屋14坪でロフト×ランドリースペース付!#平屋
間取り動画37

リアルサイズな3人家族!平屋14坪でロフト×ランドリースペース付!#平屋

間取り

面積 46.27 ㎡(13.99坪)
間取り図1
間取り図2

お問い合わせ

リアルサイズな3人家族!平屋14坪でロフト×ランドリースペース付!#平屋
プラン番号 間取り動画37

こちらのプランについての詳細や、気になる点などについてお気軽にお問い合わせください。