間取り動画41

工務店社長が建てたい11坪の平屋コンパクトハウス #平屋

alt=
alt=
  • 間取り動画41
  • [画像02]
  • [画像03]
平屋11坪+ロフト・インナーガレージ付き。こちらのテーマはは「夜、家にいる事が多いひとり暮らし」外観はちょっとした郊外にある建物というイメージ、外構も非常にシンプルでなおかつおしゃれな雰囲気でレイアウトされている。リビングにはインナーガレージ側に窓がついており、愛車を眺めることが出来る。

工務店社長が建てたい11坪の平屋コンパクトハウス #平屋
間取り動画41

工務店社長が建てたい11坪の平屋コンパクトハウス #平屋

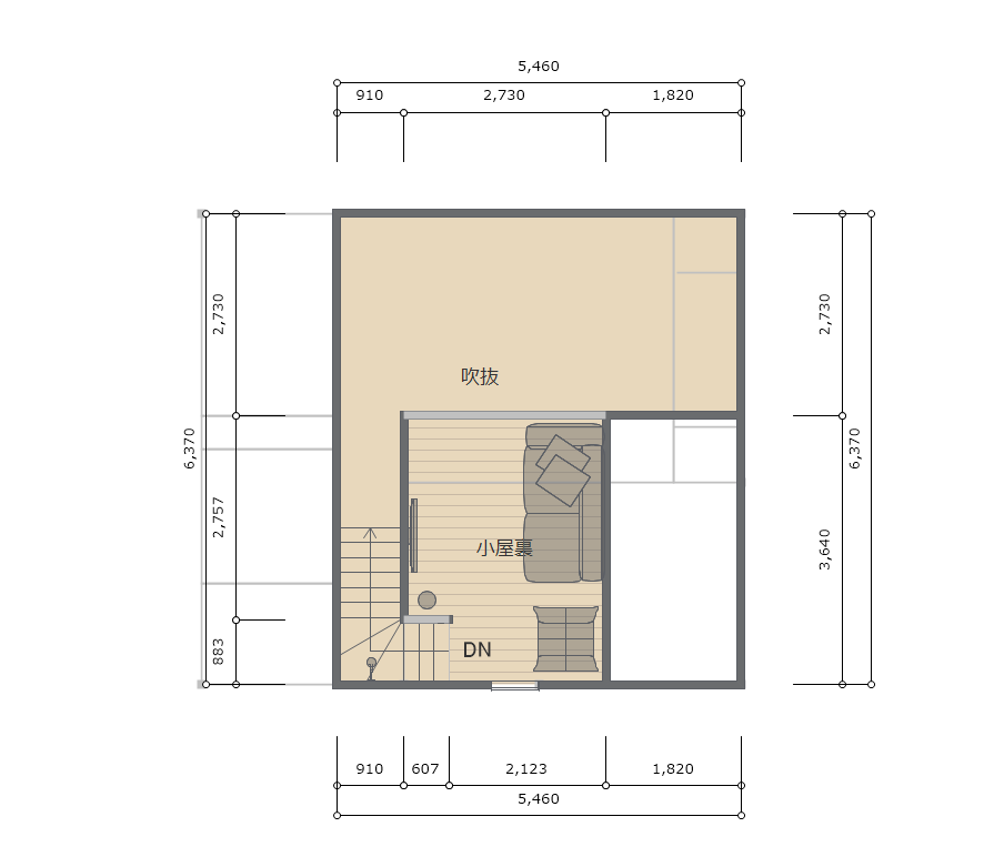
間取り

面積 36.36 ㎡(10.99坪)
間取り図1
間取り図2

お問い合わせ

工務店社長が建てたい11坪の平屋コンパクトハウス #平屋
プラン番号 間取り動画41

こちらのプランについての詳細や、気になる点などについてお気軽にお問い合わせください。