間取り動画44

二人暮らしのコンパクトハウス15坪!やっぱり平屋が一番!!#平屋

alt=
alt=
alt=
  • 間取り動画44
  • [画像02]
  • [画像03]
  • [画像04]
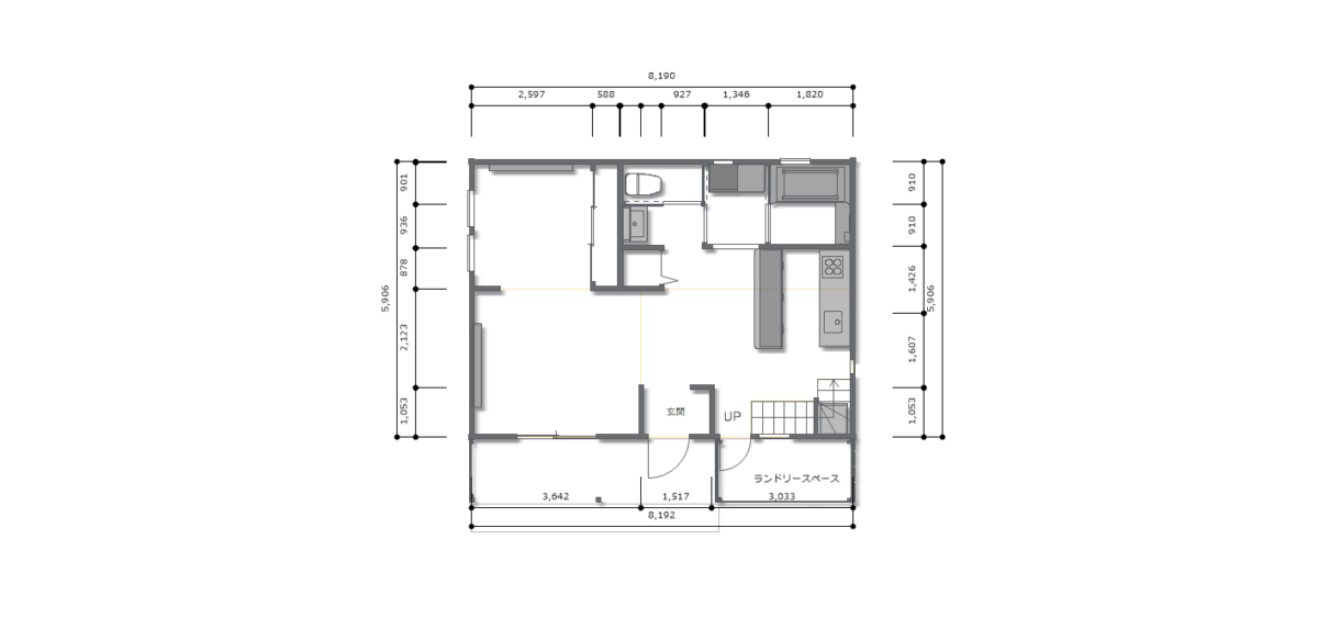
平屋15坪+ロフト付き。こちらのテーマは「二人暮らし」外にはランドリースペースとカバードポーチがついており、目隠しとして植え込みの植栽を設置。ロフトは7.5帖、窓も2つ付いており広さも明るさも確保されている。今回ロフトにはデスクスペースを設定。

二人暮らしのコンパクトハウス15坪!やっぱり平屋が一番!!#平屋
間取り動画44

二人暮らしのコンパクトハウス15坪!やっぱり平屋が一番!!#平屋

間取り

面積 49.58 ㎡(14.99坪)
間取り図1
間取り図2

お問い合わせ

二人暮らしのコンパクトハウス15坪!やっぱり平屋が一番!!#平屋
プラン番号 間取り動画44

こちらのプランについての詳細や、気になる点などについてお気軽にお問い合わせください。