間取り動画53

家族3人で暮らす 「平屋17坪ロフト付き」 #平屋

alt=
alt=
alt=
  • 間取り動画53
  • [画像02]
  • [画像03]
  • [画像04]
平屋17坪+ロフト付き。今回のテーマは「家族3人暮らし」外観の特徴は屋根の上に載っているドーマーと屋根勾配。ドーマーはロフトから使用する窓の部分となっており、屋根勾配はかなり急になっているが平屋のイメージを崩さないような高さになっている。ロフトは11.5帖あり、高さは確保できていなくても十分な解放感がある。

家族3人で暮らす 「平屋17坪ロフト付き」 #平屋
間取り動画53

家族3人で暮らす 「平屋17坪ロフト付き」 #平屋

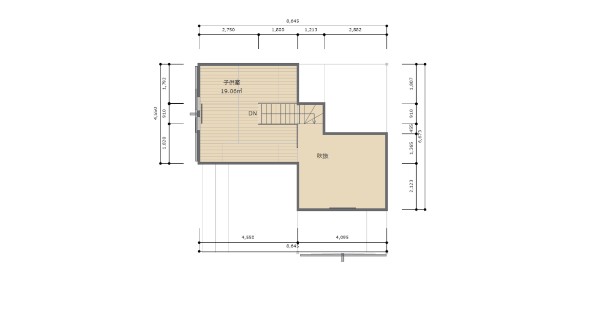
間取り

面積 56.19 ㎡(16.99坪)
間取り図1
間取り図2

お問い合わせ

家族3人で暮らす 「平屋17坪ロフト付き」 #平屋
プラン番号 間取り動画53

こちらのプランについての詳細や、気になる点などについてお気軽にお問い合わせください。