間取り動画63

これからの平屋12坪はこんなに広い!?#一人暮らし #ふたり暮らし

alt=
alt=
  • 間取り動画63
  • [画像02]
  • [画像03]
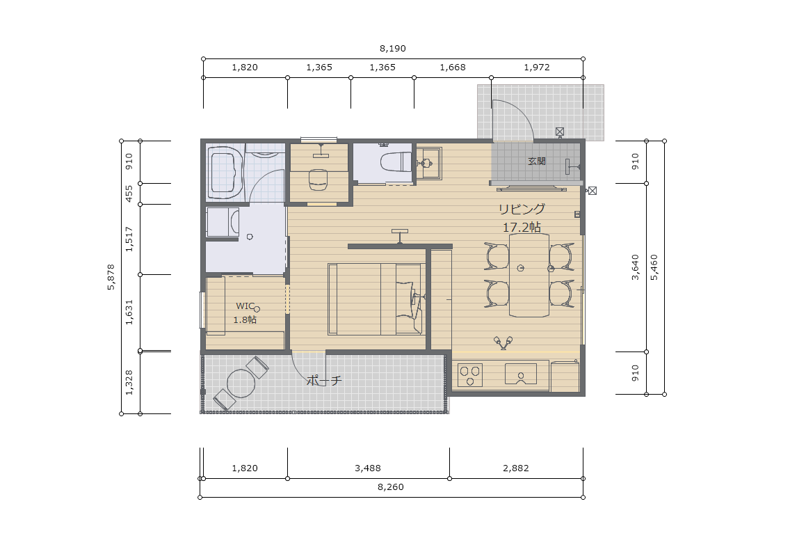
純粋な平屋12坪。今回のテーマは「ふたり暮らし」狭小敷地に建設をするイメージのため、外構は完全にクローズしており、外に作られたランドリースペースもフェンスで囲われている。間取りは回れる動線でシンプルなつくりとなっており、解放感もたっぷりある。駐車場はコンパクトカーが停められる大きさとなっている。

これからの平屋12坪はこんなに広い!?#一人暮らし #ふたり暮らし
間取り動画63

これからの平屋12坪はこんなに広い!?#一人暮らし #ふたり暮らし

間取り

面積 39.66 ㎡(11.99坪)
間取り図1

お問い合わせ

これからの平屋12坪はこんなに広い!?#一人暮らし #ふたり暮らし
プラン番号 間取り動画63

こちらのプランについての詳細や、気になる点などについてお気軽にお問い合わせください。