間取り動画73

ひとり暮らしにはこの大きさの平屋!10坪プランが帰ってきた!

alt=
alt=
alt=
  • 間取り動画73
  • [画像02]
  • [画像03]
  • [画像04]
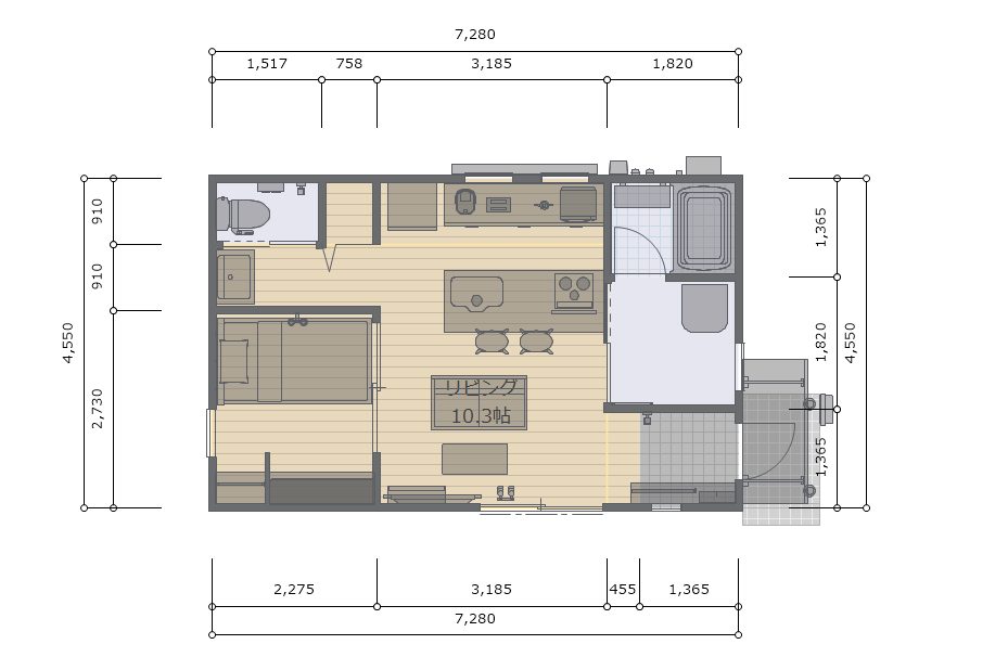
1人暮らし、10坪平屋コンパクトハウス。今回のテーマは「一人暮らし・最もスタンダードな平屋10坪」シンプルでゆとりある空間と、癒しの解放感で年齢や性別を問わずに住めるコンパクトハウス。皆さんならどのようなライフスタイルを送りますか?ワンルームながらもシステムバス1坪・脱衣ランドリースペース1坪を確保

ひとり暮らしにはこの大きさの平屋!10坪プランが帰ってきた!
間取り動画73

ひとり暮らしにはこの大きさの平屋!10坪プランが帰ってきた!

間取り

面積 33.05 ㎡(9.99坪)
間取り図1

お問い合わせ

ひとり暮らしにはこの大きさの平屋!10坪プランが帰ってきた!
プラン番号 間取り動画73

こちらのプランについての詳細や、気になる点などについてお気軽にお問い合わせください。